Добро пожаловать на http://vipplan.ru

Випплан Новозыбков - это тысячи проектов домов в нашем каталоге!

Вы всегда сможете найти для себя проект дома вашей мечты! Даже если этого не случилось, мы готовы в любую минуту предложить проект индивидуального дома.

Забыли пароль?
Вы еще не регистрировались?

Перейдите по ссылке ниже на страницу регистрации.

Регистрация...

Внимание!!!

В проектную документацию могут быть внесены изменения любой сложности, в соответствии в Вашими пожеланиями!

Полезные статьи

Как сделать мансардную крышу

Мансарда - обеспечивает дополнительную жилую площадь одно- или двухуровневой постройке за счет подкровельного пространства и, благодаря видимым элементам конструкции крыши, выполняет немаловажную эстетическую функцию. Дома с мансардой достаточно распространены в Брянской области благодаря своей привлекательности и неповторимости. ...

Утепление стен дома изнутри

Утепление стен дома изнутри – это не правильный метод теплоизоляции помещения и используется в самом крайнем случае, когда других вариантов уже не остается. Как правило, утепление стен изнутри выполняется по незнанию или вынужденно, поскольку, теплоизоляция внутренних помещений дома другим способом невозможна. Вопросы теплоизоляции необходимо решать на стадии проектирования дома или коттеджа, а не тогда когда дом уже построен и приходится исправлять совершенные ошибки по факту....

Проекты домов и коттеджей > Каталог проектов домов > Проект просторного двухэтажного дома с подвалом Vg2310

Проект просторного двухэтажного дома с подвалом Vg2310

Проект просторного двухэтажного дома с подвалом
Зарегистрируйтесь

Проект № Vg2310


Техническое описание
Общая площадь: 291.72 м2
Жилая площадь: 114.5 м2
Высота здания: 9.45 м
Размеры дома: 16.04м×13.04м
Кол-во комнат: 6
Цокольный этаж: нет
Гараж: нет
Мансарда: нет

Kонструкция
Фундамент: Ленточный
Перекрытия: Монолитные перекрытия, сборные
Материал стен: Газобетон

Архитектурный раздел
Конструктивный раздел
АР+КР - 72 000 (Со скидкой 20%)
Модель проекта индивидуального двухэтажного жилого дома с подвалом с размерами здания 16,04 x 13,04 м. Наружная отделка здания – штукатурка, облицовочный кирпич. Фундамент – ленточный, монолитный ж/б. Наружные стены – газобетон. Внутренние стены и перегородки -газобетон. Пол подвала и в гараже - пол по грунту. Межэтажное перекрытие — монолитное ж/б перекрытие, сборные ж/б перекрытия. Крыша многоскатная. Кровля – битумная черепица. Окна — металлопластиковые
Генплан застройки участка / Паспорт проекта 7000 руб / 10000 руб
Инженерный раздел (полный) 146000 руб
Смета на строительство 73000 руб
Теплотехнический расчет материалов стен Бесплатно
Стоимость проекта со незначительнми изменениями 82700 руб
Стоимость проекта со средними изменениями* 104600 руб
Стоимость проекта со значительными изменениями** 110400 руб

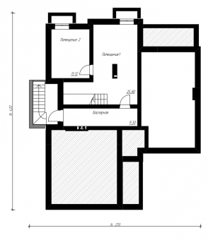
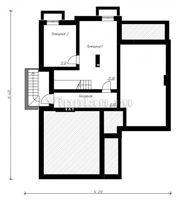
План цокольного этажа


Тамбур — 5,44 кв м
Холл — 5,03 кв м
Гостиная — 31,62 кв м
Кухня — 10,88 кв м
Спальня — 10,22 кв м
С/у — 3,37 кв м
Бойлерная — 6,95 кв м
Гараж — 35,52 кв м

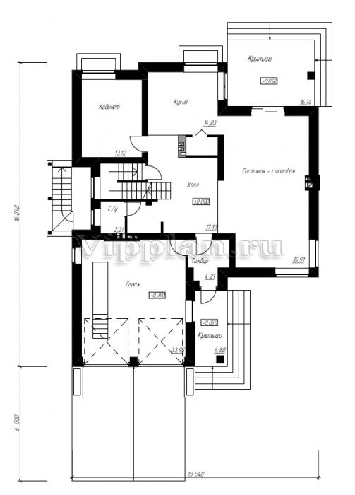
План первого этажа


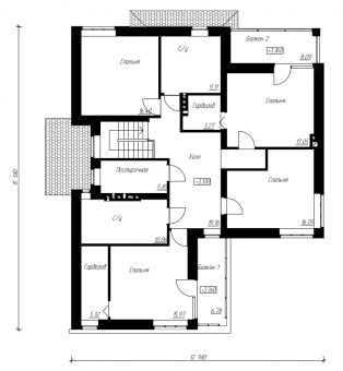
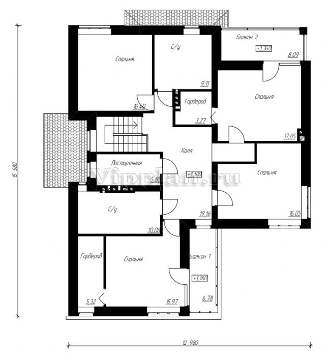
Холл — 6,32 кв м
Спальня — 19,89 кв м
Спальня — 19,81 кв м
Спальня — 19,00 кв м
Ванная — 10,13 кв м
Спальня — 25,64 кв м
Ванная — 5,88 кв м
Гардероб — 3,77 кв м

Проект просторного двухэтажного дома с подвалом

Проект просторного двухэтажного дома с подвалом

План второго этажа



Проект просторного двухэтажного дома с подвалом Проект просторного двухэтажного дома с подвалом Проект просторного двухэтажного дома с подвалом Проект просторного двухэтажного дома с подвалом

Модификации проектов

Внесение изменений и привязка к участку строительства

В любой из проектов от компании VIPplan - Новозыбков по вашему желанию могут быть внесены изменения в материалы стен, материалы наружной отделки дома, а также будет произведена адаптация проекта под конкретный регион строительства (с учетом грунтов региона, геологических особенностей вашего участка и местных климатических условий) - БЕСПЛАТНО !!! (кроме проектов со скидкой и проектов наших партнеров).

Любой из проектов, размещенных на сайте novozyibkov.vipplan.ru мы можем выполнить из требуемых вам строительных материалов: ячеистый бетон (газобетон, пеноблок), керамоблок, кирпич, шлакоблок, бетонный блок, дерево (брус, клееный брус), каркасная технология (деревянный каркас, металлокаркас (ЛСТК)).

Фасад дома и его наружную отделку так же возможно выполнить с применением различных облицовочных материалов: структурной штукатурки, (с утеплителем и без), сайдингом (пластиковый или металлосайдинг), фиброплитами, кирпича.

 
6 Избранные
проекты

Доставка проектов по России: Москва (Московская область), Санкт-Петербург (Ленинградская область), Краснодар, Ростов-на-Дону, Ставрополь, Сочи, Волгоград, Новосибирск, Белгород, Брянск, Воронеж, Саратов, Хабаровск, Астрахань, Нальчик, Владикавказ, Екатеринбург, Тюмень, Самара, Нижний Новгород, Казань, Пермь, Уфа, Челябинск, Красноярск, Ханты-Мансийск, Иркутск, Курган, Оренбург, Омск, Томск, Барнаул, Новокузнецк, Кемерово, Абакан, Чита, Якутск, Южно-Сахалинск, Петропавловск-Камчатский и страны ближнего зарубежья: Белоруссия, Украина, Казахстан