Добро пожаловать на http://vipplan.ru

Випплан Новозыбков - это тысячи проектов домов в нашем каталоге!

Вы всегда сможете найти для себя проект дома вашей мечты! Даже если этого не случилось, мы готовы в любую минуту предложить проект индивидуального дома.

Забыли пароль?
Вы еще не регистрировались?

Перейдите по ссылке ниже на страницу регистрации.

Регистрация...

Внимание!!!

В проектную документацию могут быть внесены изменения любой сложности, в соответствии в Вашими пожеланиями!

Полезные статьи

Приобретение земельного участка в собственность

Вы собираетесь приобрести участок. Прежде чем принять окончательное решение, тщательно изучите местность, на которой находится ваш участок, внимательно осмотрите местность. Узнайте о близости реки или других водоемах, всмотритесь в рельеф. Каждый из факторов может иметь неоспоримые плюсы, а также минусы, способные повлиять на окончательное решение. Стоит принять во внимание, что земельные участки, которые продаются «напрямую», дешевле тех, которые реализуют, пользуясь услугами посредников....

Мероприятия по получению разрешения на строительство в Новозыбкове

Хотите построить дом в Новозыбкове? Не знаете с чего начать? Для начала, нужно заказать проект, а после получить разрешение на строительство. ...

Проекты домов и коттеджей > Каталог проектов домов > Дом с гаражом на две машины и крытой террасой Vg2391

Дом с гаражом на две машины и крытой террасой Vg2391

Дом с гаражом на две машины и крытой террасой
Зарегистрируйтесь

Проект № Vg2391


Техническое описание
Общая площадь: 166.58 м2
Жилая площадь: 83.8 м2
Высота здания: 7.5 м
Размеры дома: 21.52м×13.31м
Кол-во комнат: 5
Цокольный этаж: нет
Гараж: нет
Мансарда: нет

Kонструкция
Фундамент: Ленточный монолитный ж/б
Перекрытия: Сборные ж/б плиты перекрытия
Материал стен: Газобетон

Архитектурный раздел
Конструктивный раздел
Инженерный раздел
Смета на строительство
АР+КР - 56 000 (Со скидкой 20%)
АР+КР+ИР - 114 450 (Со скидкой 50%)
Модель проекта индивидуального одноэтажного жилого дома с размерами здания 21,52 x 13,31 м. Фундамент - ленточный монолитный ж/б. Наружные стены - газобетонный блок, вентилируемый зазор и отделка облицовочным кирпичом. Внутренние стены - газобетонный блок. Перегородки - газобетонный блок. Стойки - трубы стальные. Пол первого этажа - пол по сборным ж/б плитам перекрытия. Чердачное перекрытия - сборные ж/б плиты перекрытия. Крыша двускатная. Кровля - металлочерепица. Окна - металлопластиковые.
Генплан застройки участка / Паспорт проекта 7000 руб / 10000 руб
Инженерный раздел (полный) 58450 руб (83500 руб)
Смета на строительство 31313 руб (41750 руб)
Теплотехнический расчет материалов стен Бесплатно
Стоимость проекта со незначительнми изменениями 65800 руб
Стоимость проекта со средними изменениями* 78400 руб
Стоимость проекта со значительными изменениями** 81700 руб

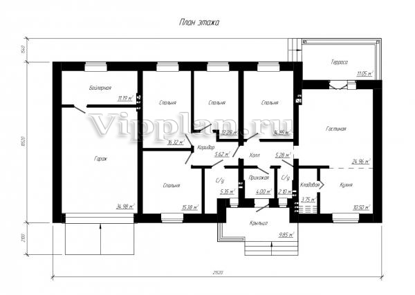
План первого этажа


Прихожая - 4,00 кв м
Холл - 5,28 кв м
С/у - 2,10 кв м
Кладовая - 3,75 кв м
Кухня - 10,50 кв м
Гостиная - 24,96 кв м
Спальня - 14,85 кв м
Спальня - 12,29 кв м
Коридор - 5,62 кв м
Спальня - 16,32 кв м
Бойлерная - 11,19 кв м
Гараж - 34,98 кв м
Спальня - 15,38 кв м
С/у - 5,35 кв м
Дом с гаражом на две машины и крытой террасой Дом с гаражом на две машины и крытой террасой Дом с гаражом на две машины и крытой террасой Дом с гаражом на две машины и крытой террасой

Модификации проектов

Внесение изменений и привязка к участку строительства

В любой из проектов от компании VIPplan - Новозыбков по вашему желанию могут быть внесены изменения в материалы стен, материалы наружной отделки дома, а также будет произведена адаптация проекта под конкретный регион строительства (с учетом грунтов региона, геологических особенностей вашего участка и местных климатических условий) - БЕСПЛАТНО !!! (кроме проектов со скидкой и проектов наших партнеров).

Любой из проектов, размещенных на сайте novozyibkov.vipplan.ru мы можем выполнить из требуемых вам строительных материалов: ячеистый бетон (газобетон, пеноблок), керамоблок, кирпич, шлакоблок, бетонный блок, дерево (брус, клееный брус), каркасная технология (деревянный каркас, металлокаркас (ЛСТК)).

Фасад дома и его наружную отделку так же возможно выполнить с применением различных облицовочных материалов: структурной штукатурки, (с утеплителем и без), сайдингом (пластиковый или металлосайдинг), фиброплитами, кирпича.

 
6 Избранные
проекты

Доставка проектов по России: Москва (Московская область), Санкт-Петербург (Ленинградская область), Краснодар, Ростов-на-Дону, Ставрополь, Сочи, Волгоград, Новосибирск, Белгород, Брянск, Воронеж, Саратов, Хабаровск, Астрахань, Нальчик, Владикавказ, Екатеринбург, Тюмень, Самара, Нижний Новгород, Казань, Пермь, Уфа, Челябинск, Красноярск, Ханты-Мансийск, Иркутск, Курган, Оренбург, Омск, Томск, Барнаул, Новокузнецк, Кемерово, Абакан, Чита, Якутск, Южно-Сахалинск, Петропавловск-Камчатский и страны ближнего зарубежья: Белоруссия, Украина, Казахстан